Sold

IMMACULATELY PRESENTED

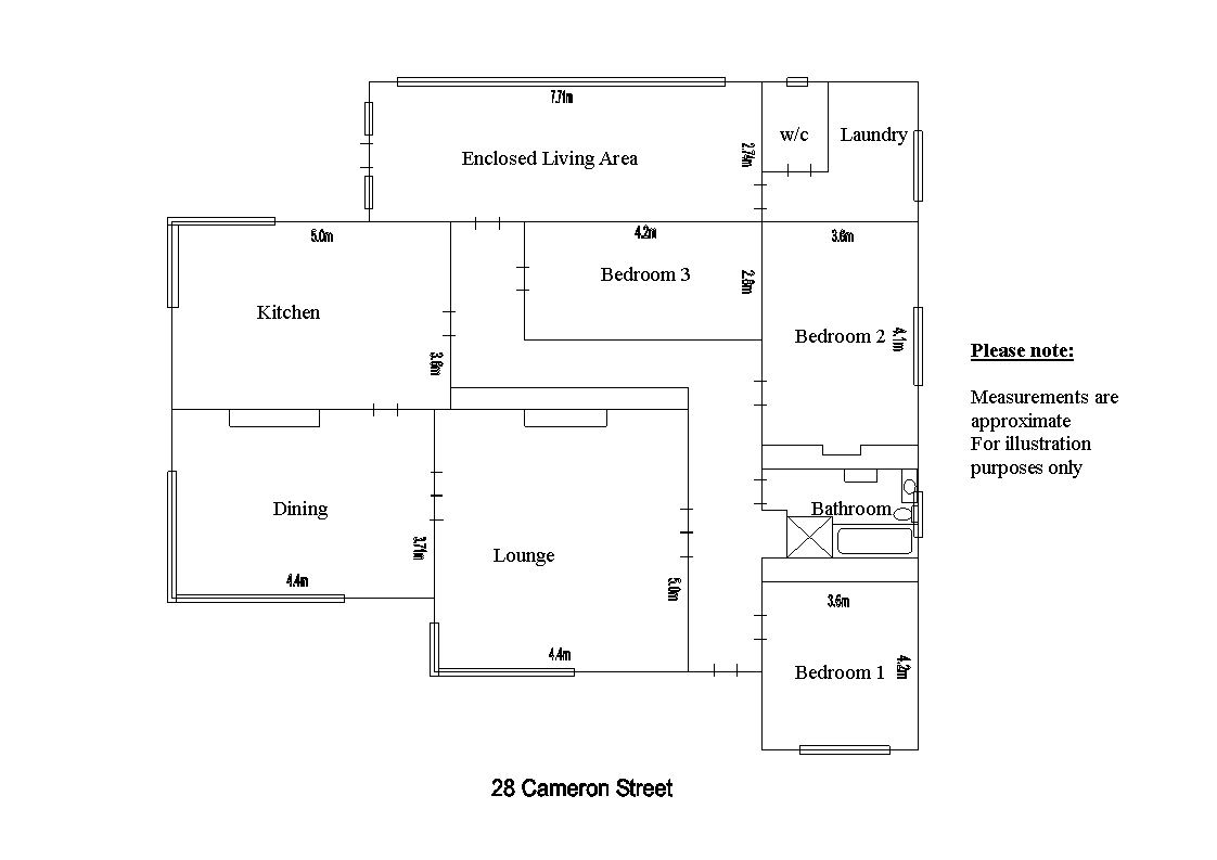
Built back in 1959 is this meticulously maintained 3 bedroom brick and stone home situated on a great size town allotment of approximately 1138 square metres.
The home includes a recently renovated kitchen, formal dining with open wood fire place, 3 large bedrooms with extensive built in robes, various heating and cooling options and study.
Outside features a double garage, rear patio, small garden shed, approx 40,000lts of rainwater plumbed to the house and a fully equipped bore connected to the pop up sprinkler system and watering lines.
The gardens are immaculate. This is a very well presented home that should draw lots of attention.
AUCTION: Sat 17th Nov @ 10:30am.....
If not sold before!
OPEN INSPECTION: Sat 20th October @ 10:00am - 10:45am
3 1 2 1,138 m2
Address 28 Cameron Street, Penola
Price SOLD
Property Type Residential
Property ID 272
Category House
Land Area 1,138 m2

Agent Details

Mark De Garis photo

Mark De Garis

0428 372 124
View Profile