Sold

MARKET STARTER......- Popular Location

Cameron Street has been a popular location for buyers, being so close to the main street, schools and sporting facilities and here we have a renovated market starter for a buyer to enjoy.
Some of the renovations that have taken place over the past few years include:
* new floor coverings through kitchen and living areas
* new kitchen including pantry, dishwasher, electric oven & cook-tops
* electrical re-wiring
* new combustion wood fire
* freshly painted inside and
* timber venetian blinds throughout
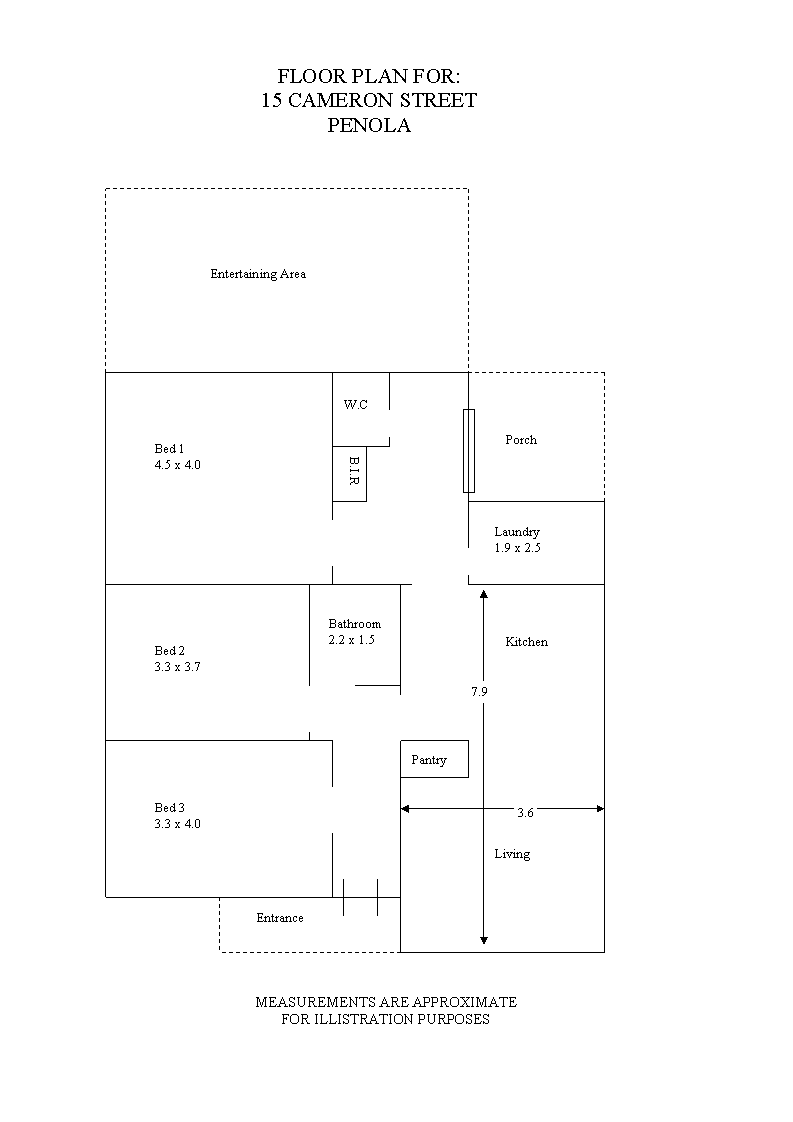
All 3 bedrooms are of good size and the master bedroom includes reverse cycle air conditioning and built in robes.
Outside entertain guests under a great size pergola with built in brick BBQ looking onto the well manicured lawns and gardens which includes veggie patch.
There is a 12.0m x 6.0m shed with concrete floor, power and service pit. This shed has another room built into it which would make a top teenage retreat.
So for the first home buyer, retiree or investor......this property could be ideal.
3 1 2 966 m2
Address 15 Cameron Street, Penola
Price SOLD
Property Type Residential
Property ID 286
Category House
Land Area 966 m2

Agent Details

Mark De Garis photo

Mark De Garis

0428 372 124
View Profile