Sold

A home for the Entertainer

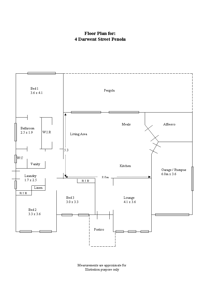
This well cared for family home was built in 2009 and has been tastefully finished.
It includes a large master bedroom with walk in robe and an adjoining 2-way bathroom.
Bedrooms 2 & 3 have built in robes.
There is a formal lounge room and open plan kitchen / dining and second living area that overlooks the huge new pergola and alfresco area.
Features include a stainless steel dishwasher, oven and range-hood, slow combustion wood heater, reverse cycle air-conditioner, feature light fittings, venetian blinds and a separate powder room.
The garage has been transformed into a 3rd living area / games room with carpet and has access to the outside entertaining area.
Outside you will love entertaining friends any time of the year.
Enclosed back yard, large lawns, established gardens and fruit trees on their way as well as a new pop-up sprinkler system will make things easy.
There is also 50,000 ltrs of rainwater storage plumbed to the house and a garden shed.
This is a nice well cared for family home perfect for the entertainer.
Any enquiries to Luke Duncan or Mark DeGaris.

Features

Outdoor entertainment area Sprinkler System
3 1 1 860 m2
Address 4 Darwent Street, Penola
Price SOLD for $290,000
Property Type Residential
Property ID 344
Category House
Land Area 860 m2

Agent Details

Mark De Garis photo

Mark De Garis

0428 372 124
View Profile