Character Home on an Acre – Minutes from Historic Penola

TDC are pleased to present to the market 6 Kidman Lane Penola; A rare and highly sought-after lifestyle opportunity; A lovingly renovated character home on an acre block (approx.), only a few minutes from bustling rural township of historic Penola; The gateway to the renowned Coonawarra wine region.

The solid Mount Gambier stone home is full of character and features high ceilings with ornate cornice's and ceiling rose, spacious rooms, and wide hallways. A thorough renovation, meticulously done has almost fully restored the home to its former glory.

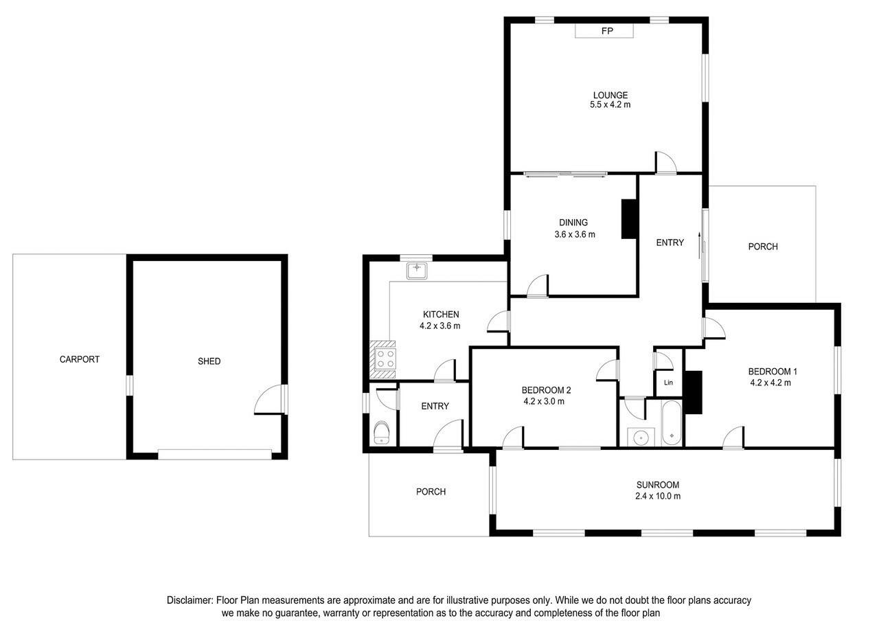
The house has a great layout. Pull up into the garage via the remote controlled roller door. Leave your boots in the mud room and enter the kitchen where the original finished floorboards give this space a farmhouse feel. Just around the corner, the formal dining area with fireplace, or a third bedroom. From here, via double doors, a spacious living room made cosy with new quality carpet. The space also has a slow combustion fire and near new reverse cycle air conditioner, perfect for year-round comfort. A wide hallway connects the updated bathroom and a further two good-sized bedrooms, which open onto an enclosed veranda / sunroom / forth bedroom; your bonus room.

Outside, it doesn’t get any more rural than next doors paddock, full of fat cattle grazing.  On your side of the fence, most of the hard work has already been done with mature trees having been trimmed and new native plantings starting to establish. Enjoy the rural lifestyle on a very manageable acre complete with veggie / fruit tree garden, bore for watering, 10,000 gal of rainwater connected to the house,  chicken coop and large shed with concrete floor. 

A character home with space, just out of town at an affordable price; Properties such as these are rarely offered to the market. In this thriving rural market, we don’t expect this opportunity to last long. Call Mark 0428 372 124 today to arrange a private inspection.

3 1 3 3,809 m2
Address 6 Kidman Lane, Penola
Price SOLD
Property Type Residential
Property ID 810
Category House
Land Area 3,809 m2

Agent Details

Mark De Garis photo

Mark De Garis

0428 372 124
View Profile