Lovingly Maintained Rural Living with Town Convenience

Nestled in a tranquil setting just a minute's drive from the charming township of Penola, this well-maintained property on 1 hectare of land offers the perfect blend of rural living and modern convenience. Boasting a quiet location with minimal traffic on popular Chinamans Lane, this residence has been cherished by its sole owners, presenting an ideal opportunity for those seeking a spacious yet peaceful lifestyle.

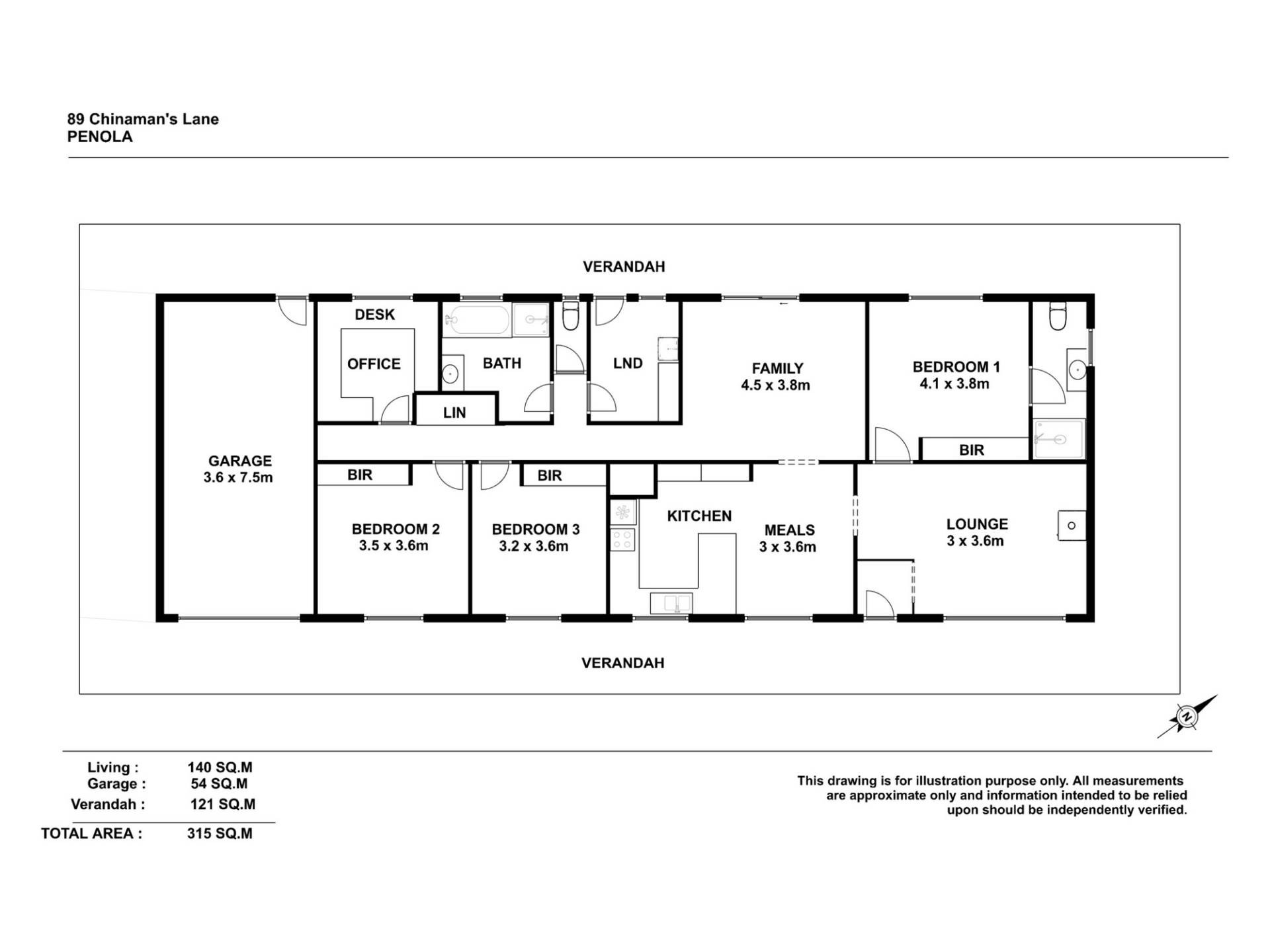
External Features:

The property encompasses a sprawling 1 hectare of land, surrounded by established trees, providing both privacy and a picturesque backdrop. A highlight of the external features is the expansive 10m x 20m shed, equipped with power and half concreted floor. An adjoining 5-bay lean-to provides ample space for machinery storage, complemented by additional garden and wood shedding. The property benefits from ample rainwater, a bore, solar power, a biocycle septic system, and stock water availability.

The Home:

A brick veneer home boasts timeless appeal, aesthetically enhanced by a full perimeter veranda around the home.

  • Bedrooms: The main bedroom features floor-to-ceiling built-in robes and a recently renovated ensuite with modern fixtures. Plus two additional generously sized bedrooms with built-in-robes on the Southern end of the home. 

  • Kitchen and Dining: The kitchen and combined dining area show off country charm, boasting timber cabinetry, a corner pantry, and electric cooking facilities. Large windows overlook the expansive front lawns, inviting beautiful natural light.

  • Living Areas: A cosy living area, adorned with a slow combustion wood fire and a feature internal brick wall offers a welcoming space for gatherings and relaxation. While a second living area or mudroom provides additional versatility as a parents or children's retreat.

  • Additional Features: 

    • Single car garage with remote roller door under the main roof
    • Dedicated office with excellent cabinetry, ideal for those requiring a remote work setup or a private study space.
    • Ducted heating and cooling ensure year-round comfort

This lovingly maintained property presents a rare opportunity to embrace rural living without compromising on modern comforts. With its convenient proximity to town amenities and extensive external features, this residence offers the perfect balance of tranquility, functionality, and lifestyle convenience.

Please note the sale of this home is subject to successful subdivision onto 1 hectare allotment. An additional three adjoining vacant lifestyle allotments are also available for sale via the TDC website.

Contact Karly Honner 0438 339 729 or Mark De Garis 0428 372 124 to arrange a private inspection of this rare opportunity today.

3 2 3 1.00 ha
Address 89 Chinamans Lane, Penola
Price SOLD
Property Type Residential
Property ID 934
Category House
Land Area 1.00 ha

Agent Details

Karly Honner photo

Karly Honner

0438 339 729
View Profile
Mark De Garis photo

Mark De Garis

0428 372 124
View Profile