Equine Heaven

Rarely does a property as unique, grand, and convenient as “Oldbury Farm” hit the market. “Oldbury Farm” offers a stunning homestead situated on 84 highly productive acres less than 5 minutes from the centre of Millicent, opposite the racecourse. 

The facade of the stone villa is breathtaking with ornate lattice, symmetrical in design with feature quoining and wide return verandah; elevating its style amongst stunning surrounds. The established gardens are simply beautiful, sweeping lawns and low maintenance beds means less work and more enjoyment.

Inside the home, the period masterpiece continues. Showcasing character features such high ceilings, wide cornicing, stunning fireplaces and mantles and tall skirtings. The central hallway is a highlight of the home with the beautiful leadlight in the front door a true feature and polished Baltic pine floors which flow throughout the home.

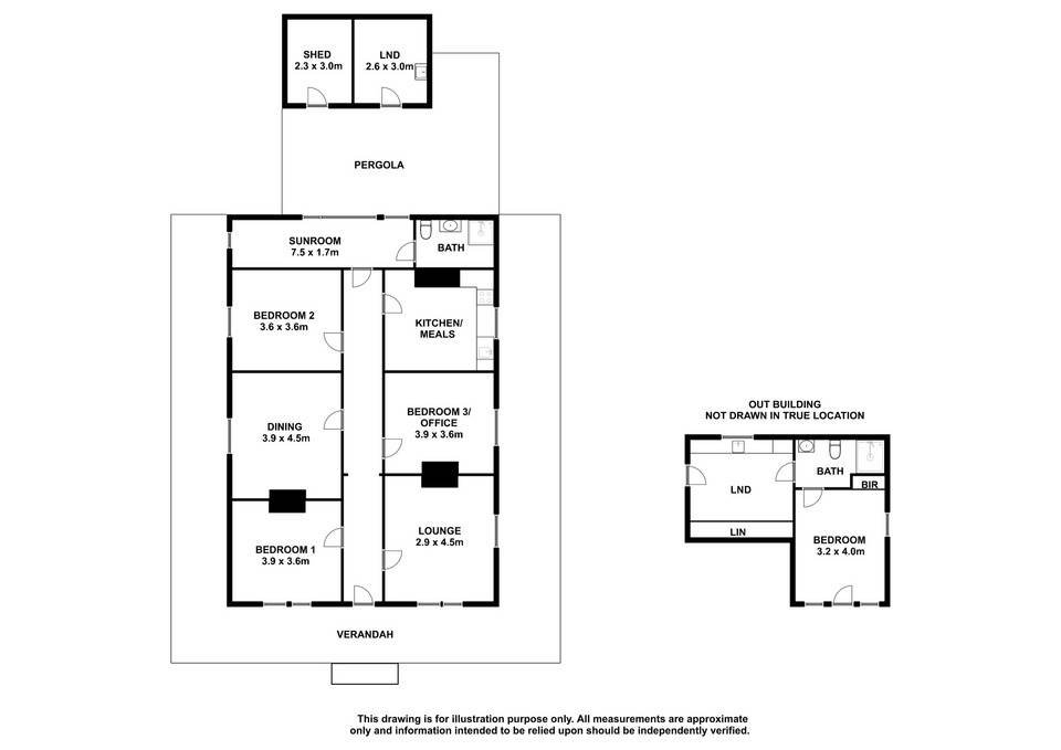
The home offers separate living and dining areas, each with spectacular fireplaces. Three generously sized bedrooms are presented in the main home, with a fourth bedroom (with BIRs) provided in the detached living quarters at the rear of the property. The detached living also features a generously sized laundry with ample storage, and bathroom.

A renovated main bathroom offers feature floor tiles and good-sized shower. The timber kitchen has ample storage, a dishwasher and an in-built oven and offers views of the gorgeous gardens.

A second laundry is also detached from the home, adjoining a small storage shed.

Horse lovers are also well catered for, with a 60m x 40m shell grit topped horse arena, stabling for four horses, six horse pens – all watered, tack room and large round yard also included in this magnificent property.

“Oldbury Farm” is fenced into eight main paddocks all serviced by the central laneway and watered via 37mm poly line. Fencing consists of plain wires with pine posts and poly droppers. “Oldbury Farm” is a feed machine, with the highly productive black friable loam growing a bulk of rye grass, clover, chicory and lucerne.

There are plenty of opportunities for income; trade and finish stock, breeding and horse agistment to name a few.

A good set of sheep and cattle yards with under cover crush allows the opportunity to draw an income from the property.

There is ample shedding on offer with a 6mx10m hay shed, 11mx18m high clearance shed with enclosed workshop and an open fronted 21mx9m high clearance machinery shed.

“Oldbury Farm” offers exceptional rural living. The property is a credit to the vendors. The new owners are set to benefit from many years of hard work and pride in an exceptional property.

TDC are proud to offer “Oldbury Farm” for sale for $1,500,000. Your inspection is highly recommended.

Contact Tom Pearce on 0427 642 138 or Mark DeGaris on 0428 372 124 for further information and to organise your inspection.

 

 

 

4 2 3 84.00 ac
Address 285 Plunkett Tce, Millicent
Price $1,500,000 - Rural Living On A Grand Scale.
Property Type Rural
Property ID 897
Land Area 84.00 ac

Agent Details

Tom Pearce photo

Tom Pearce

0427 642 138
View Profile
Mark De Garis photo

Mark De Garis

0428 372 124
View Profile