Renovated family home on 1755m2

Situated on the quiet Northern end of McArthur St, this renovated family home offers space, practicality and style on an allotment spanning a huge 1755m2. All the hard work has been done for you at this stunning property - move in and don't lift a finger!

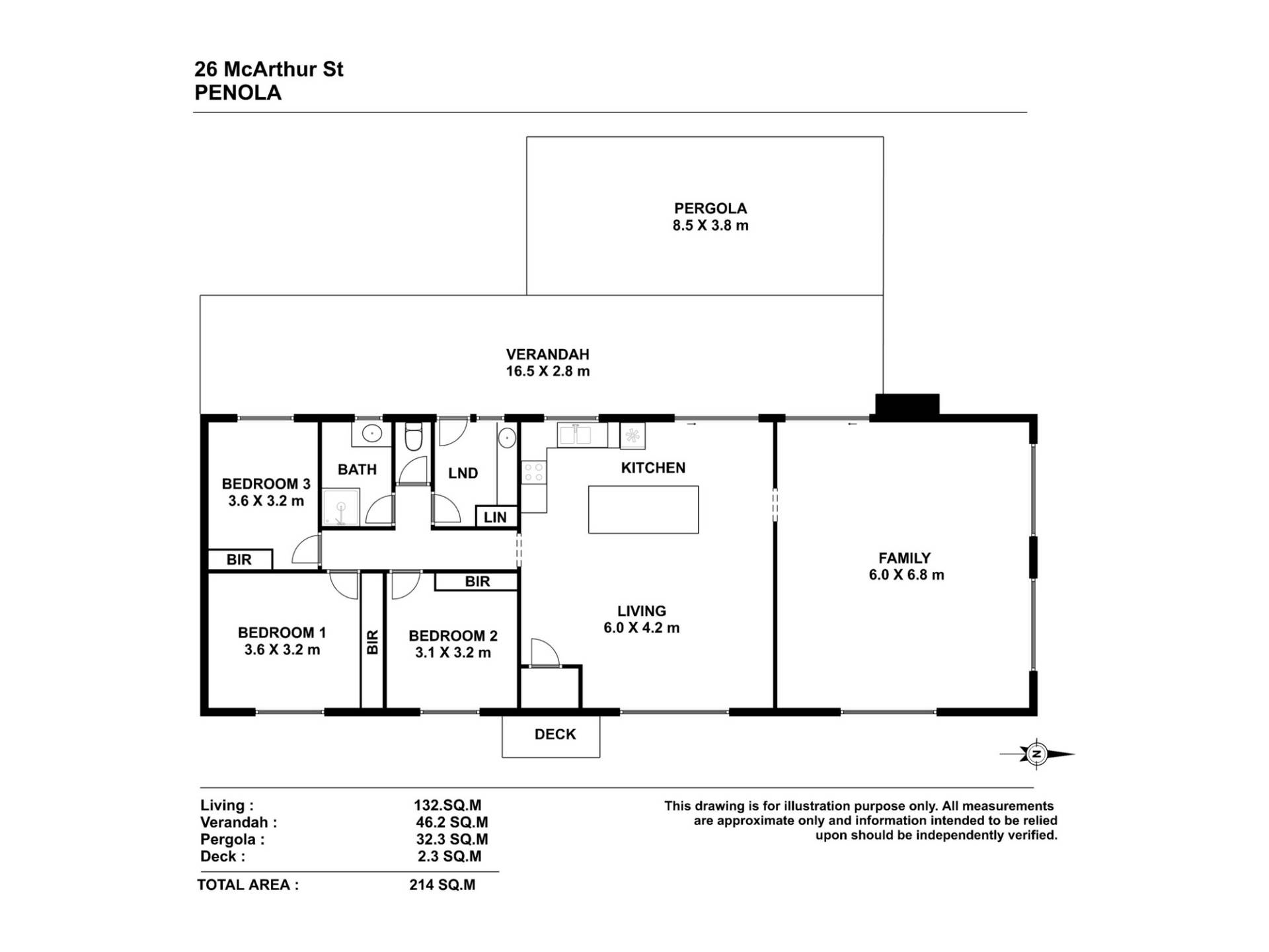
Upon entry to the brick veneer home you'll be greeted by a beautiful open plan kitchen, living and dining area. The contemporary kitchen offers stunning marble look benchtops, dishwasher, electric cooking, great storage and spacious island bench. The open-plan living is cosy all year round with slow combustion heating. The appealing floating floorboards continue through to a huge second living area with the stunning windows letting in an abundance of natural light. This area is ideal as a children's retreat or could even be sectioned to create a fourth bedroom.

Both areas extend to the large outdoor entertaining area overlooking the vast lawn and established trees. The home offers three good sized bedrooms all with BIRs (all with new carpet), and an additional linen cupboard can be found in the hallway. 

The wet areas are all brand new! The new bathroom offers modern floor to ceiling white tiles, shower and vanity in neutral colour tone. The adjoining toilet and laundry area carry the same aesthetic appeal and design features, with the laundry offering convenient external access. 

A double bay shed (with extra depth for your workshop and garden tools) can be found in the South Western corner of the allotment, with additional garden shed on the Northern side. All fencing has been replaced in a brand new neutral colourbond tone. The yard is also equipped with a bore with new submersible pump, ample taps and 15,000L of rainwater.

Family homes on large allotments in this price range are rare. Don't miss your chance to snap up this wonderful opportunity today! Contact Karly Honner 0438 339 729 or Mark De Garis 0428 372 124 to arrange an inspection.

3 1 2 1,755 m2
Address 26 Mcarthur St, Penola
Price SOLD for $410,000
Property Type Residential
Property ID 932
Category House
Land Area 1,755 m2

Agent Details

Karly Honner photo

Karly Honner

0438 339 729
View Profile
Mark De Garis photo

Mark De Garis

0428 372 124
View Profile